57
$949,900 Sale
Listed 13 hours ago
2289 GRASSLANDS Boulevard
· 5
· 3.0
· 2
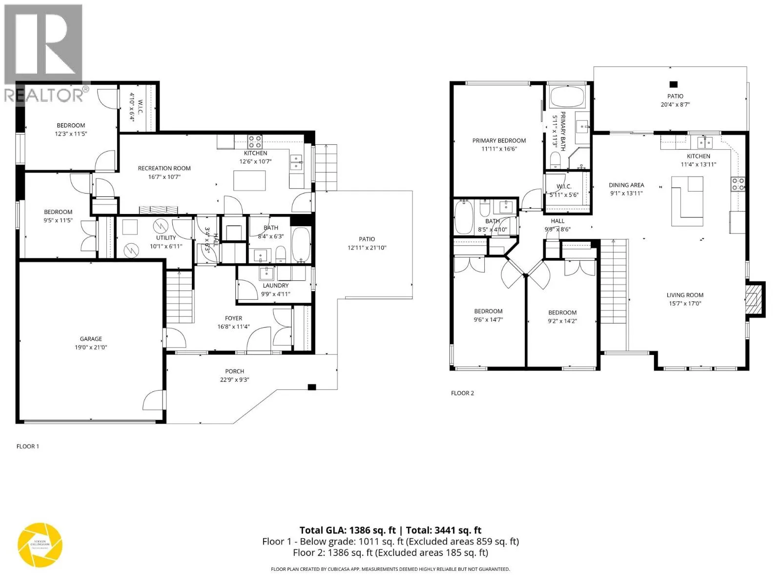
· 2397
Key Facts
Key facts for 2289 GRASSLANDS Boulevard
Property Type
House, House
Parking
Garage: Yes, 2 parking
MLS #
10365117
Size
2397 sqft
Basement
-
Listed on
-
Lot size
-
Tax
-
Days on Market
-
Year Built
2019
Maintenance Fee
-
Description
Showings to start Saturday Oct 11 at noon. Batchelor Heights beauty with sweeping views and a private yard backing onto protected grasslands. Built in 2019, this 5-bed/3-bath, ~2,397 sq.ft. home offers an open main level and bright daylight basement. Chef’s kitchen features a custom eating bar and q...uartz counters; engineered hardwood/tile/carpet throughout. Gas rough-in for range; 200-amp service. The lower level adds excellent flexibility with a 2-bed in-law suite with its own laundry and separate entrance. Smart upgrades: suite-dedicated sub-panel with usage meter, two hot-water tanks, a mini-split A/C for the suite and sound proof insulation in the ceiling. Additional tenant parking down below not part of the lot. Wiring in place for a future hot tub. Double garage, fiber-cement siding, and central A/C complete the package. Reach out to the listing agent to book your showing! (id:10452)
Similar Properties (No results)
Room Types
4pc Bathroom
-
Measurements not available
0 sqft
Bedroom
-
Dimensions 11'5'' x 12'3''
139.85 sqft
Bedroom
-
Dimensions 9'2'' x 14'2''
129.86 sqft
Listing courtesy of: Royal Lepage Westwin Realty
This REALTOR.ca listing content is owned and licensed by REALTOR® members of The Canadian Real Estate Association.